alu architectes cf725a7b0abcc19677db1410e85ee5f00311d9d2f61bf43b744114f9ec0cac0d932fac478440ce5627f38926186d32874810bde3c74ccbac326aabfacba622a8
Sportifs

Gymnase type C - les Bartelottes
La Ville-du-Bois

Surface
0
Coût
0
Avancement
Concours

Maître d' œuvre - alu

Partenaires

   • MC2 - BET TCE

   • Gamba - Acousticien

Maître d'ouvrage - Commune de la Ville-du-Bois

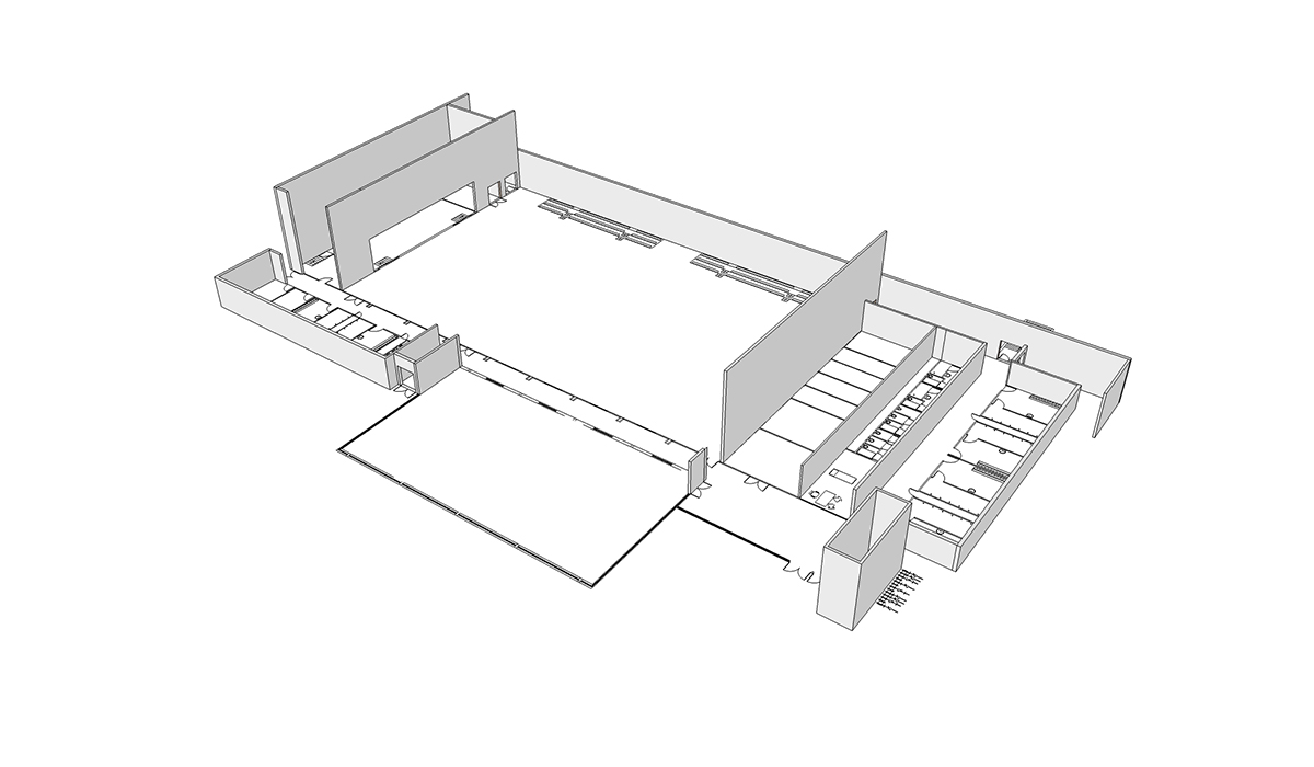
La création d’un gymnase en relation avec une école sur le site des Bartelottes entraine la Commune dans un projet ambi-tieux et nécessaire. Les contraintes contemporaines nous poussent à exiger des rendements énergétiques et environnementaux importants. Notre groupement y est sensible. Lors de l’analyse du dossier, il nous est apparu rapidement que l’enveloppe budgétaire (en-viron 800 €/m2) ne permet pas de rejoindre ces niveaux de rendement. Sur nos dernières réalisations, nous avons observé des ratios plus importants en atteignant des rendements aux moins équi-valents. Le dilemme est d’arbitrer si l’on souhaite maîtriser les coûts aux risques de ne pas être conforme à la RT2012 et accepter une esthétique plus « industriel » du bâtiment ou de privilégier les cibles HQE et l’apparence de l’équipement en contrôlant le prix. Le bâtiment marque l’entrée de l’opération et devra être le symbole des ambitions de la ville. Notre plan, de conception rationnel et fonctionnel, permet de dégager trois zones : le Gymnase, le Dojo et la scène accom-pagnés de leurs espaces annexes. Nous avons conçu le complexe comme une construction en “plug-in” où chaque élément vient se joindre les uns aux autres de manière cohérente et organisée autour d’une croix de circulations principales ayant des qualités de tampons acoustiques. Les deux grandes masses du gymnase et du dojo s’articulent chacun indépendamment : Arrivant sur le parvis et passant le contrôle du gardien, un cube de béton teinté et strié, l’utilisateur peut se rendre soit dans le couloir des vestiaires gymnase ou sur sa gauche, dans le couloir desservant les vestiaires du dojo. L’infirmerie donne sur le hall. Les deux entités Dojo et Gymnase conçues en charpente lamellé collé existent par leur revêtement distinct, l’un massif avec un soubassement vitré et une vêture en zinc à joints debout, l’autre telle une cathédrale de bois avec ses brise-soleil verti-caux recevant la lumière naturelle sur ses grands côtés. La scène est située sur le petit côté du gymnase. De part et d’autre, deux salles servent de loges et de régie, celle-ci mobile possède un espace suffisant pour entreposer les équipements de la salle. Deux rideaux épais permettront d’affaiblir acoustiquement la salle et contrôler les effets d’échos. Enfin au-dessus de la scène, nous avons construit en étage et accessible depuis le parking en surplomb un local technique suffisant pour accueillir non seulement les machineries pour le complexe, mais aussi au besoin celles de l’école. Une entrée secondaire permet de rejoindre l’école en ne traversant que le parking.